AVK Dienstleiding afsluiter, PN16
Zwart/blauwe SDR11 PE100 buizen, duplex spindel
AVK Nederland BV
Radeweg 12 8171 MD Vaassen Nederland
Dienstleiding afsluiter met PE100 PN16 SDR11 buizen en met een duplex roestvast stalen spindel. Voor drinkwater en neutrale vloeistoffen tot max. 20°C. Opmerking: De maximale bedrijfstemperatuur is ingesteld volgens de ISO9080 levensduureisen voor PE-buizen en is daarom niet de maximale bedrijfstemperatuur voor de afsluiter.
AVK schuifafsluiters zijn ontworpen met ingebouwde veiligheid tot in elk detail. De schuif is volledig gevulkaniseerd met KIWA / ATA goedgekeurd EPDM rubber. Kenmerken zijn uitstekende duurzaamheid vanwege het geheugen van het rubber om zijn oorspronkelijke vorm weer aan te nemen, het dubbele vulkanisatie proces en het robuuste schuif ontwerp. Het drievoudig beveiligd afdichtingssysteem, de sterke spindel en de grondige bescherming tegen corrosie waarborgen de ongeëvenaarde betrouwbaarheid.
| Variant 36/79-016 | |
|---|---|
| Verbinding | PE buiseinden |
| Materiaal: | Nodulair Gietijzer |
| DN: | DN25 - DN50 |
| PN: | PN 16 |
| Sluitrichting | Rechtsom sluiten |
Kenmerken
- Schuif van messing CW626N gevulkaniseerd met drinkwater goedgekeurd EPDM rubber.
- De schuif met geleiderails en met een speciaal rubber profiel garandeert lage sluitmomenten.
- Spindel van duplex roestvast staal en met gerold schroefdraad
- Volledig ronde spindelkraag garandeert fixatie van spindel en lage aandraaimomenten
- Drievoudig beveiligd afdichtingsysteem: NBR stofkeringsring en vier NBR O-ringen en een EPDM rubberen manchet.
- Verzonken EPDM profielrubber tussen boven- en onderhuis
- Verzegelde, met rubber omcirkelde en afgedichte roestvaststalen bouten
- Volle doorlaat
- Laag bedieningsmoment
- Epoxy coating volgens DIN 3476 deel 1 en EN 14901, GSK goedgekeurd
- Een standaard PE buis wordt geperst op het gegroefde uiteinde van de schuifafsluiter, daarna afgesloten met een stalen ring en dan verzegeld met een krimphoes. De boutloze en volle doorlaat PE verbinding is trekvast en sterker dan de PE buis zelf. Het uiteinde is geschikt voor rechtstreeks lassen op PE buizen wat resulteert in een snelle en veilige montag
Downloads
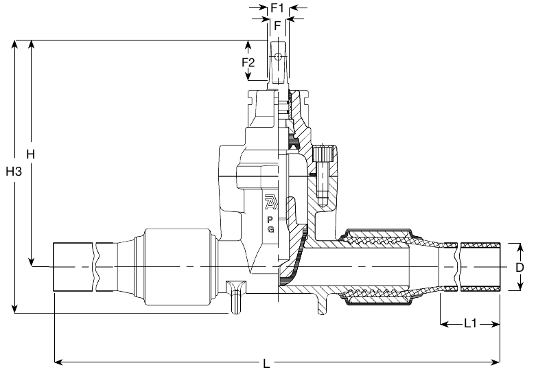
Artikelnrs. en afmetingen
| AVK artikel nr. | DN |
D mm |
Product PN Klasse |
H mm |
H3 mm |
L (± tol.) mm |
L1 mm |
F mm |
F1 mm |
F2 mm |
Theoretisch gewicht/kg |
|---|---|---|---|---|---|---|---|---|---|---|---|
| 36-032-79-16306499 | 25 | 32 | PN16 | 163 | 190 | 800 (10) | 300 | 12 | 15 | 35 | 2,7 |
| 36-040-79-16306499 | 32 | 40 | PN16 | 176 | 209 | 850 (10) | 300 | 12 | 15 | 35 | 3,4 |
| 36-050-79-163064 | 40 | 50 | PN16 | 203 | 235 | 880 (10) | 300 | 12 | 15 | 35 | 5,6 |
| 36-063-79-163064 | 50 | 63 | PN16 | 213 | 254 | 880 (10) | 300 | 12 | 15 | 35 | 6,8 |
Onderdelen
| 1. | Spindel | Duplex 1.4362/AISI S32304 |
| 2. | Stofkeringsring | NBR rubber |
| 3. | O-ring | NBR rubber |
| 4. | Lager | Polyamide |
| 5. | Bovenhuis | Nodulair gietijzer GJS-500-7 (GGG-50) |
| 6. | Borging | Ontzinkingsvrij messing, CW602N |
| 7. | Manchet | EPDM rubber |
| 8. | Bout | Roestvast staal A2, verzegeld |
| 9. | Profielrubber | EPDM rubber |
| 10. | Schuif | Ontzinkingsvrij messing, CW626N met EPDM |
| 11. | Huis | Nodulair gietijzer GJS-500-7 (GGG-50) |
| 12. | Koker | Staal/gecoat |
| 13. | Krimphoes | Kunststof |
| 14. | Buis | PE |
Goedkeuringen
- Hydraulische test volgens EN 1074-1 en 2 / EN 12266 |
- Afdichting: 1.1 x PN (in bar), Huis: 1.5 x PN (in bar). Bedieningskoppel test |
- Materiaal goedgekeurd voor drinkwater
Normen
- Ontworpen volgens EN 1074 deel 1 & 2, Ontworpen volgens EN 1171